Продаётся двухуровневый дом в стиле Hi-Tech, Бубуечь, ул. Фиерарилор

Bubuieci, Str. Fierarilor

265.000€
ID: 101585048 37
  • Кол-во комнат:4
  • Общая площадь:260.00 mp
  • сотки:6.00 ari
  • Кол-во кухон:1
  • Кол-во ванн:3
  • Кол-во балконов:1
  • парковочные места:2
  • Этажность:P+2

Предлагаем к продаже современный дом, находящийся на стадии строительства, который будет введён в эксплуатацию.
Дом в 2 уровня, в «белом варианте», расположен на участке 6 соток, в коммуне Бубуечь.

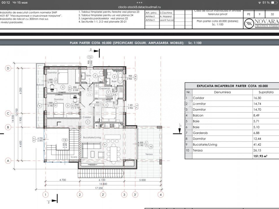
Общая площадь — 260 кв.м (цоколь + первый этаж), планировка следующая:
Цокольный этаж: прихожая, лестница с двойным светом, 1 спальня, 1 санузел, котельная, погреб, кладовая, открытый гараж на 2 автомобиля. (Высота потолков: 2,70 м)
Первый этаж: гостиная с кухней и выходом на террасу, 1 санузел, 3 отдельные спальни, 1 мастер-спальня с собственной ванной комнатой. (Высота потолков: 3,30 м)
Район с хорошо развитой инфраструктурой. Удобный доступ к общественному транспорту в любом направлении города.

Дом построен из BCA и обладает следующими преимуществами:
внешнее утепление пенополистиролом 15 мм;
панорамные окна;
крыша с тепло- и гидроизоляцией;
расположение в тихом, жилом районе;
все коммуникации в районе имеются и подключены индивидуально на участок;
освещённые улицы, тишина и чистый воздух;
парковка на 4 автомобиля (2 под навесом + 2 во дворе);
удачное месторасположение.

Дом будет передан с полностью завершёнными внешними работами, без внутренней отделки.

В стоимость входит:
Несущая конструкция и кладка.
Крыша с тепло- и гидроизоляцией.
Установленные окна и входные двери.
Проведённые электрические и санитарные коммуникации внутри дома.
Отделанный фасад.
Забор по всему периметру участка и благоустроенный двор.

Дом идеально подойдёт для семьи, которая ценит пространство, комфорт и тишину, находясь на небольшом расстоянии от Кишинёва.

  • Основные удобства: Електричество, Вода, Центральная канализация, Газ, Интернет, Удобства вблизи
  • Система отопления: Автономное отопление

Achită în rate

Prețul:

265000
Prima rată:
30%
Perioada de calcul:
25 Ani
Plata lunară: 0
Aportul inițial: 0
Suma împrumutată: 0

* Datele financiare sunt aproximative și pot varia în funcție de instituția financiară.

Boiciuc Liudmila
Boiciuc Liudmila
Стажер

Позвоните

Подобные объекты

Apeleaza Chat