




































Продаётся новый, современный дом, расположенный в центре города Крикова, в тихом районе, на уединённой улице с небольшим количеством соседей.
Подъезд к дому асфальтированный, дом подключён к центральному водоснабжению и канализации.
Дом построен из красного кирпича, с прочными наружными и внутренними стенами.
Хорошо утеплён: 10 см — стены и 20 см — крыша. Установлены немецкие окна высокого качества с 7 камерами и 3 стёклами, обеспечивающие отличный тепло- и звукоизоляционный комфорт.
Дом располагает просторной террасой и свободной зоной за домом для обустройства по вашему желанию. Есть возможность установить беседку и бассейн.
Участок площадью 4,4 сотки, грамотно зонирован, расположен в центральной части городка Крикова, ул. Дечебал.
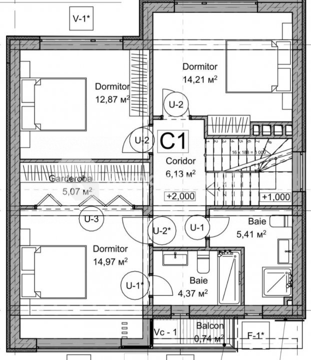
Жилая площадь дома составляет 130 кв. м.
Планировка:
• Гостиная с кухней open space
• Мастер-спальня с гардеробной и собственной ванной комнатой
• 2 детские спальни
• 3 санузла
Практичный и качественно построенный дом из хороших материалов — идеальный вариант для семьи по справедливой цене.
Не упустите возможность жить в современном, энергоэффективном доме с отделкой высокого уровня!
Prețul:
* Datele financiare sunt aproximative și pot varia în funcție de instituția financiară.