Imagine 153

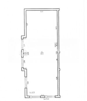
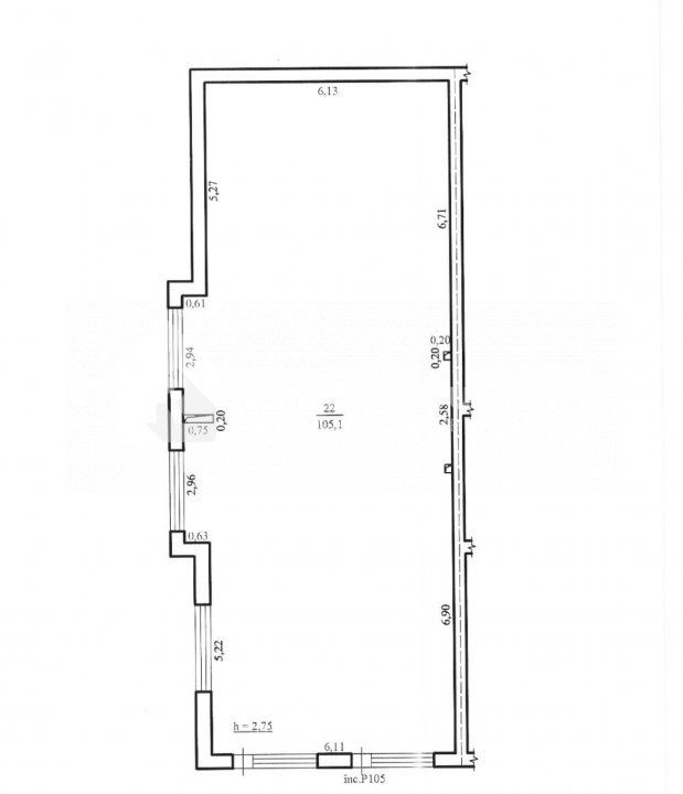
Spațiu comercial 105 mp, open space, geamuri panoramice – Telecentru.

ID: P18460 Chisinau, Telecentru 215
Pret la cerere
Descriere
Se oferă spre vânzare spațiu comercial amplasat în sectorul Telecentru, pe str. Ialoveni 100/3, într-o zonă accesibilă și bine dezvoltată, în imediata apropiere de Oficiul Cadastral Nr. 1 și Academia de Administrare Publică.

Spațiul are o suprafață totală de 105 mp și este compartimentat în format open space, oferind flexibilitate maximă pentru amenajare în funcție de necesitățile activității dumneavoastră.

Imobilul este prezentat în variantă albă, ceea ce permite personalizarea completă a designului interior.
Dispune de geamuri panoramice, asigurând lumină naturală din abundență și vizibilitate excelentă pentru orice tip de business.

Potrivit pentru diverse activități comerciale: showroom, birou, salon, clinică sau alte tipuri de servicii.

Pentru mai multe detalii sau programarea unei vizionări, nu ezitați să ne contactați.
Caracteristici
  • ID:P18460
  • S. construita:105.00 mp
  • Comp.:Open space
  • Regim inaltime:P+10
Curent
Apa
Canalizare
Localizare
Grincevschi Mark
Senior Partner
Contacteaza-ma
Proprietati similare
Imagine 9657
0% comision
Spațiu comercial – 205 mp, demisol, bloc nou – bulevardul Alba Iulia!
Chisinau, Buiucani 155.000€
6 Camere Demisol/10
Imagine 7497
0% comision
Spațiu Comercial de Vânzare – prima linie, sector Ciocana.
Chisinau, Ciocana 149.990€
3 Camere Parter/5
Imagine 1322
0% comision
Vanzare spatiu comercial în complexul Astercon Dumbrava, parter, 108 mp!
Chisinau, Buiucani 185.300€
2 Camere Parter/7