Imagine 77

3-комнатная квартира | Новый дом Varincom | Рышкановка, ул. Николае Димо

ID: 101008075 Chisinau, Riscani 165
158.300€
Описание
3-комнатная квартира | Новый дом Varincom | Рышкановка, ул. Николае Димо

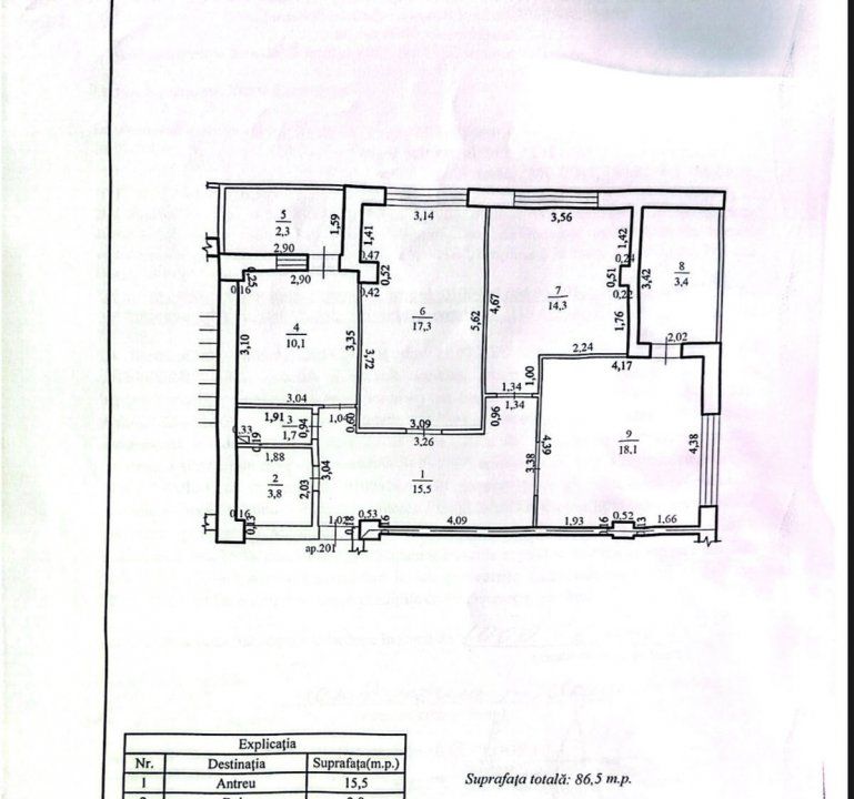
Расположена на 2 этаже из 11, общая площадь — 86,50 м².
Квартира предлагается в белом варианте, готова к обустройству по вашему стилю. Планировка практичная, а дом новый, построен и отделан компанией Varincom, все коммуникации уже подключены.

Основные характеристики:
• Общая площадь: 86,5 м²
• Этаж: 2 / 11
• Открытый балкон
• Новый дом Varincom
• Белый вариант
• Все коммуникации подключены

Район зеленый и тихий, с удобным доступом к общественному транспорту, магазинам, школам и другим объектам инфраструктуры. Отличный вариант как для собственного проживания, так и для надежного инвестирования, в месте с постоянным спросом.
Характеристики
  • ID:101008075
  • Кол-во комнат:3
  • Общая площадь:86.50 mp
  • Этаж:Etaj 2
  • Этажность:P+11
Електричество
Вода
Центральная канализация
Газ
Автономное отопление
Локация
Cacerovschi Vlad
Senior Partner
Позвоните
Подобные объекты
Imagine 22832
0% comision
Telecentru , PENTHOUSE, bloc nou
Chisinau, Telecentru 169.000€
2 Комнат Этаж 11/11
Imagine 22227
0% comision
2-комнатная квартира с гостиной, евроремонт, Newton House, ул. Иоана Раду.
Chisinau, Buiucani 179.900€
2 Комнат Этаж 1/9
Imagine 22152
0% comision Exclusivitate
Продажа квартиры в новострое, 2 комнаты и гостиная, Чеканы, Мирча чел Бэтрын.
Chisinau, Ciocana 136.900€
2 Комнат Этаж 5/10
Imagine 21957
0% comision
Продажа квартиры с 2 спальнями + гостиной, Lagmar, Корнешть, район Цирка.
Chisinau, Riscani 176.000€
2 Комнат Этаж 7/12
Imagine 21938
0% comision
Продажа 2-комнатной квартиры, жилой комплекс Hermes, застройщик Varincom.
Chisinau, Riscani 145.000€
2 Комнат Этаж 11/15
Imagine 22239
0% comision
Центр, ул. Г. Асаки, 2 спальни + гостиная, евроремонт.
Chisinau, Centru 157.500€
2 Комнат Этаж 12/15