Квартира с 1 комнатой+гостиная, Renașterii Naționale, Рышкановка, City Gardens.

Chisinau, Riscani, Renasterii Nationale

87.156€
ID: P19073 23
  • Кол-во комнат:2
  • Общая площадь:51.47 mp
  • Этаж:Etaj 4
  • Кол-во кухон:1
  • Кол-во ванн:1
  • год строительства:2025
  • Структура:Beton
  • Этажность:P+15

Продаётся квартира с 1 комнатой и гостиной в строящемся доме, жилой комплекс City Gardens, сектор Рышкановка, бульвар Renașterii Naționale.

Общая площадь: 53,47 м²
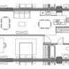
Планировка:
Прихожая
Кухня с гостиной
1 спальня
Санузел

Характеристики:
Очень удачная планировка
Белый вариант
Монолитный каркас
Теплоизоляция минеральной ватой
Индивидуальная система отопления с собственным котлом
Отдельный учёт воды и электричества
Бронированная дверь
Детская площадка на территории

Инфраструктура:
Удобный доступ к общественному транспорту во всех направлениях города

  • Основные удобства: Електричество, Вода, Центральная канализация, Газ
  • Система отопления: Отопление на дом

Achită în rate

Prețul:

87156
Prima rată:
30%
Perioada de calcul:
25 Ani
Plata lunară: 0
Aportul inițial: 0
Suma împrumutată: 0

* Datele financiare sunt aproximative și pot varia în funcție de instituția financiară.

Rusnac Alexandru
Rusnac Alexandru
Senior Partner

Позвоните

Подобные объекты

Apeleaza Chat