







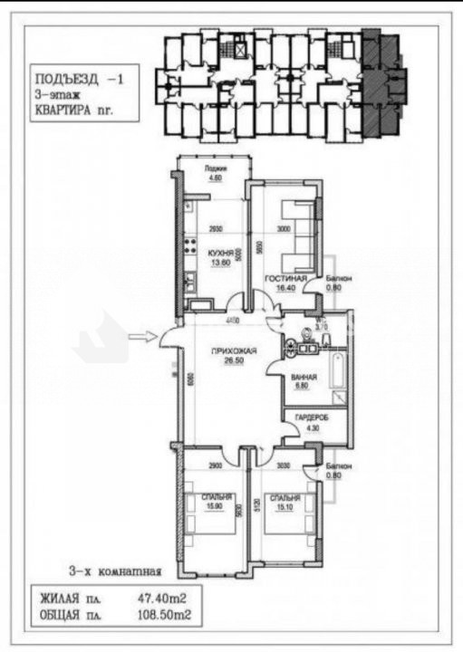
3-комнатная квартира с ливингом, площадью 108 квадратных метров, расположена на 4 этаже комплекса Ион Буздуган, построенного компанией ExFactor.
Технические подробности о строительстве здания:
Железобетонный каркас обеспечивает устойчивость и прочность конструкции.
Стены из красного кирпича от Macon SA долговечны и способствуют тепло- и звукоизоляции дома.
Утепление минеральной ватой – плюс к энергоэффективности здания.
Акустически и теплоизолированные полы обеспечивают дополнительный комфорт.
Окна Salamander известны своим качеством, обеспечивающим тепло- и звукоизоляцию.
Подземные парковки очень практичны.
Современные и бесшумные лифты, которые достигают даже уровня парковки, являются основным преимуществом для комфорта и доступности арендаторов.
Благоустройство двора с игровой площадкой для детей и зонами отдыха для взрослых повышает ценность и удобство для сообщества.
Prețul:
* Datele financiare sunt aproximative și pot varia în funcție de instituția financiară.