Imagine 153

Apartament cu 3 camere în bloc nou, variantă albă, Botanica, Tudor Strișca.

ID: P20429 Chisinau, Botanica 496
139.900€
Descriere
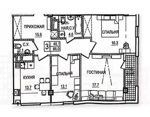
Se oferă spre vânzare un apartament luminos și generos, cu suprafața de 86 mp, situat la etajul 7 din 17 pe strada Tudor Strișca 19/2, sectorul Botanica.

Locuința dispune de o compartimentare practică, camere spațioase și lumină naturală din plin, fiind ideală pentru o familie care își dorește confort și acces rapid la toate facilitățile urbane.

- Etaj intermediar
- Zonă dezvoltată
- Acces facil la transport public
- Magazine, școli și grădinițe în apropiere
Caracteristici
  • ID:P20429
  • Nr. camere:3
  • S. construita:86.00 mp
  • Etaj:Etaj 7
  • Nr. bucatarii:1
  • Nr. bai:2
  • Nr. balcoane:2
  • An constructie:2022
  • Structura:Altele
  • Regim inaltime:P+16
  • Orientare:Sud-Vest
Curent
Apa
Canalizare
Gaz
Acces internet
Utilitati in zona
Centrala proprie
Calorifere
Izolatie Exterior
Ferestre PVC
Usa intrare Metal
Apometre
Contor gaz
Interfon
Lift
Spatii agrement
Acoperis
Curte
Localizare
Cotorobai Ghenadie
Senior partner
Contacteaza-ma
Proprietati similare
Imagine 29731
0% comision
Vanzare apartament cu 2 camere + living, Astercon Dumbrava.
Dumbrava, Centru 144.900€
2 Camere Etaj 4/7
Imagine 29669
0% comision
Apartament cu 3 camere + living, Sky House - Dimineții. Rate de la dezvoltator!
Chisinau, Botanica 152.299€
3 Camere Etaj 11/18
Imagine 29705
0% comision
Vanzare apartament cu 4 camere, seria 135, Ciocana
Chisinau, Ciocana 135.000€
4 Camere Etaj 8/9
Imagine 29570
0% comision
Apartament 2 dormitoare + living | Dumbrava | 101,32 mp | Premium-Cons Samsara
Dumbrava, Centru 146.900€
2 Camere Etaj 2/7
Imagine 29468
0% comision
Ciocana, apartament cu 1 cameră+living spațios, reparat/mobilat/Dansicons!
Chisinau, Ciocana 121.500€
1 Camera Etaj 5/10
Imagine 29303
0% comision Rep. exclusiva
Apartament cu 3 camere în complexul Sky House – str. Dimineții
Chisinau, Botanica 126.390€
3 Camere Etaj 1/16