Imagine 77

Vânzare apartament cu 2 camere+living, Exfactor, Ciocana.

ID: P17987 Chisinau, Ciocana 9
84.500€
Descriere
Apartament cu 2 camere în bloc nou, construit de compania ExFactor.
Blocul locativ este poziționat foarte reușit, în spatele fostului magazin Fidesco de pe bd. Mircea cel Batrân.
Blocul este dotat cu 3 ascensoare silențioase, parcări subterane și debarale.
La distanta de doar 200 metri se află 3 licee - Orizont, Dacia și Gaudeamus, 2 grădinițe de copii (nr. 197 și 212).
În spatele blocului la moment Primăria mun. Chișinău amenajează un scuar foarte frumos.
Blocul este dotat cu 3 ascensoare silențioase, parcări subterane și debarale.

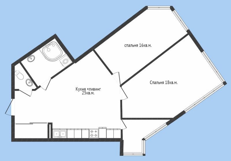
Apartamentul are următoarea compartimentare:
* hol;
* bucătăria + living;
* 2 dormitoare;
* bloc sanitar separat.

Suprafața locuinței constituie de 68,8 mp.
Este amplasat la etajul 14 din 17.
Caracteristici
  • ID:P17987
  • Nr. camere:2
  • S. construita:69.00 mp
  • Etaj:Etaj 14
  • Nr. bucatarii:1
  • Nr. bai:2
  • Nr. balcoane:1
  • An constructie:2022
  • Regim inaltime:P+17
Curent
Apa
Canalizare
Gaz
Termoficare
Bloc izolat termic
Ferestre PVC
Localizare
Ivanov Serghei
Senior Partner
Contacteaza-ma
Proprietati similare
Imagine 15954
0% comision
Apartament cu 2 camere, variantă albă, Poșta Veche, Chișinău.
Chisinau, Posta Veche 93.900€
2 Camere Etaj 8/12
Imagine 15753
0% comision
Apartament de vanzare cu 2 camere în Centru, str. Albișoara!
Chisinau, Centru 85.900€
2 Camere
Imagine 15627
0% comision
Apartament cu 2 camere, Botanica, SkyHouse Diminetii.
Chisinau, Botanica 91.900€
2 Camere Etaj 11/18
Imagine 15578
0% comision
Apartament de vanzare cu 3 camere, 89,8 mp, Estate Sunrise III.
Chisinau, Telecentru 90.690€
3 Camere Etaj 5/12
Imagine 15572
0% comision
Apartament cu 3 camere, 80,6 mp, Estate Sunrise III.
Chisinau, Telecentru 83.000€
3 Camere Etaj 5/12
Imagine 15144
0% comision
Apartament de vanzare cu 1 cameră, Botanica, str. Grenoble.
Chisinau, Botanica 82.500€
1 Camera Etaj 4/9