Imagine 77

Apartament cu 2 camere+living, 77 mp, Buiucani, Vasile Lupu, lângă Valea Morilor

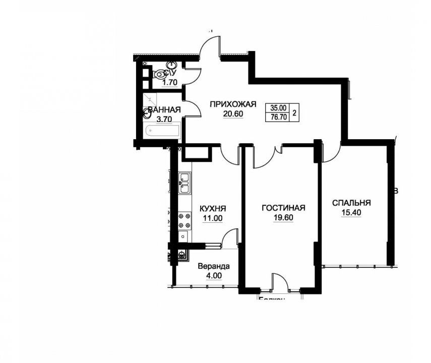
ID: P18768 Chisinau, Buiucani 127
146.500€
Descriere
Complexul Vasile Lupu Compania de construcție Ex-Factor.
Apartament amplasat în apropierea parcului Valea Morilor, la intersecţia str. N. Belinski și V. Lupu.
Priveliște frumoasă spre natură și panorama orașului!

Etaj 5 din 14, suprafata 76,70 m2.
Compartimentat în: 2 dormitoare, bucătărie, living, 2 blocuri sanitare, balcon.

Caracteristici:
1. Încălzire autonomă individuală cazan clasa A și calorifere din aluminiu;
2. Geamuri termopane cu 6 camere și 3 sticle;
3. Pereții interiori și exteriori din cărămidă roșie;
4. Pereții și pardoselele fonoizolate cu material special contra zgomotului între vecini;
5. Înălţimea tavanelor 3m;
6. Contoare la toate rețelele de gaz, lumină, apă;
7. Fațadă termoizolată cu vată minerală (produs ecologic);
8. Sistem antiincendiu, prin conectarea la detectorii de fum, de temperatură şi de gaz.

Facilitățile blocului:
- fațada termoizolată cu vată minerală de la 80-100mm, finisată cu tink european, marca Baumit, Caparol;
- parterul blocului finisat cu granit;
- 3 nivele de parcări subterane;
- 1 nivel de spaţii comerciale;
- ascensoare silențioase Kleemann, ce coboară inclusiv şi la parcări;
- sistem de pază şi supraveghere video 24/24.

Curtea complexului este amenajată cu teren de joacă pentru copii, pază și supraveghere video 24/24, și parcare subterană.
În imediată apropiere găsiți: parcurile Valea Morilor și Dendrarium, bănci, saloane de frumusețe, supermarket Linella, grădinițe, licee, etc.
Acces facil la transportul public în orice direcție a orașului.
Caracteristici
  • ID:P18768
  • Nr. camere:2
  • S. construita:77.00 mp
  • Etaj:Etaj 5
  • Nr. bucatarii:1
  • Nr. bai:2
  • Nr. balcoane:1
  • Regim inaltime:P+14
Curent
Apa
Canalizare
Gaz
Centrala proprie
Lift
Spatii agrement
Localizare
Contacteaza-ma
Proprietati similare
Imagine 22152
0% comision Exclusivitate
Vanzare apartament în bloc nou, 2 camere și living, Ciocana, Mircea cel Batran.
Chisinau, Ciocana 136.900€
2 Camere Etaj 5/10
Imagine 22058
0% comision
Râșcani, bd. Moscova, apartament cu 2 dormitoare + living, 60mp.
Chisinau, Riscani 126.500€
2 Camere Etaj 7/13
Imagine 21983
0% comision
Botanica, bd. Dacia, apartament de vanzare cu 3 camere.
Chisinau, Botanica 126.900€
3 Camere Etaj 4/9
Imagine 21938
0% comision
Vânzare apartament cu 2 camere, complexul Hermes, Varincom.
Chisinau, Riscani 145.000€
2 Camere Etaj 11/15
Imagine 22239
0% comision
Centru, Gh. Asachi, 2 dormitoare + living, reparație euro.
Chisinau, Centru 157.500€
2 Camere Etaj 12/15
Imagine 21803
0% comision
Apartament cu 2 camere + living, Buiucani, Colina Residence.
Chisinau, Buiucani 145.900€
2 Camere Etaj 5/6