Imagine 153

Apartament cu 1 cameră + living, 52,25 mp, Hora Village. Achitare în rate!

ID: P20022 Chisinau, Buiucani 364
79.900€
Descriere
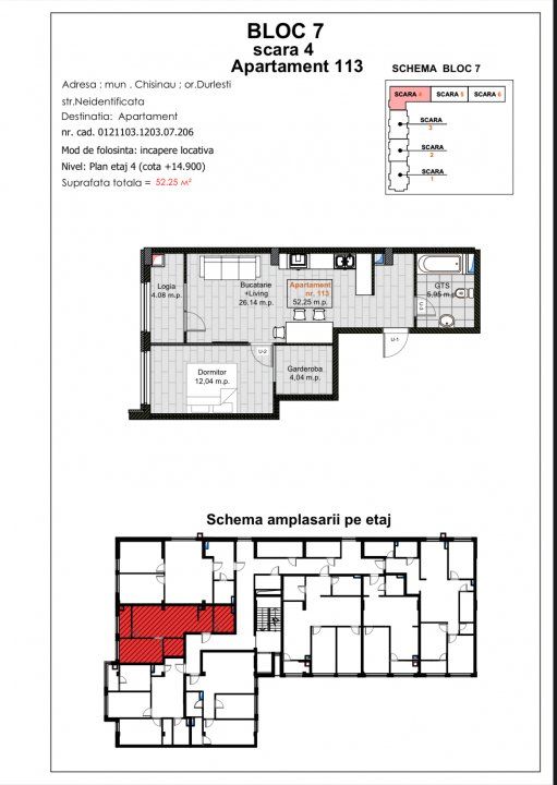
Apartament cu 1 dormitor și living, amplasat în sec. Buiucani, pe str-la. Bisericii.
Complexul rezidențial Hora Village.
Suprafața totală: 52, 25 mp.
Compartimentare: dormitor, bucătăria comasată cu living, bloc sanitar, garderobă, balcon.

Caracteristici:
- încălzire autonomă;
- geamuri panoramice;
- bloc din caramidă roșie;
- curte cu acces restrâns și supraveghere video;
- amplasarea lângă parcul Valea Morilor.

Curtea complexului amenajată cu diverse spații comerciale, gradiniță privată, multiple terenuri de joacă pentru copii, terenuri de sport pentru maturi, parc cu havuz și alee pietonală.
În imediată apropiere găsiți: bănci, saloane de frumusețe, supermarketuri, instituții de învățămînt etc.

Prima rată: 21.450 €
Au mai rămas de achitat: 13 rate trimestriale, a câte 4.498,41 € fiecare
Preț per m²: 1.480 €
Preț total: 79.900 €
Caracteristici
  • ID:P20022
  • Nr. camere:1
  • S. construita:52.25 mp
  • Etaj:Etaj 4
  • Nr. bucatarii:1
  • Nr. bai:1
  • Nr. balcoane:1
  • Structura:Caramida
  • Regim inaltime:P+5
Curent
Apa
Canalizare
Gaz
Centrala proprie
Localizare
Zavorot Daniel
Senior Partner
Contacteaza-ma
Proprietati similare
Imagine 28290
Exclusivitate
Apartament cu 2 camere + living, încălzire autonomă, Vatra, Centru!
Vatra, Centru 79.900€
2 Camere Etaj 1/3
Imagine 27885
0% comision
Apartament cu 2 camere, bloc nou, dat în exploatare – Codru, Valea Apelor.
Codru, Periferie 79.200€
2 Camere Etaj 6/6
Imagine 27744
0% comision Exclusivitate
Vînzare apartament cu 1 cameră, Telecentru, șos. Hîncești.
Chisinau, Telecentru 68.000€
1 Camera Etaj 2/2
Imagine 27786
0% comision
Apartament 1 cameră în bloc nou, 32mp, Botanica, Muncești
Chisinau, Botanica 82.500€
1 Camera Etaj 9/10
Imagine 27991
Vanzare apartament cu 1 cameră, bd. Dacia 40, Botanica.
Chisinau, Botanica 89.900€
1 Camera Etaj 14/16
Imagine 27258
0% comision
Vanzare apartament cu 1 cameră și living, bloc nou, reparație, Durlești, N. Dimo
Durlesti, Centru 78.500€
1 Camera Etaj 2/9