





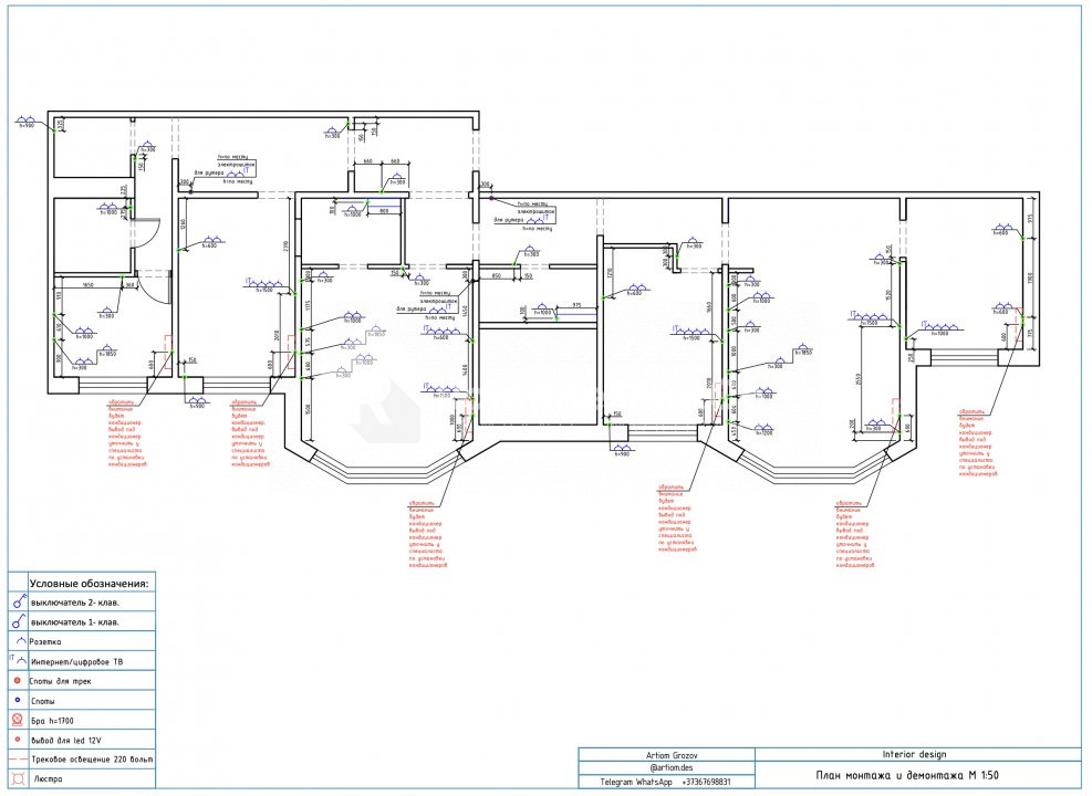
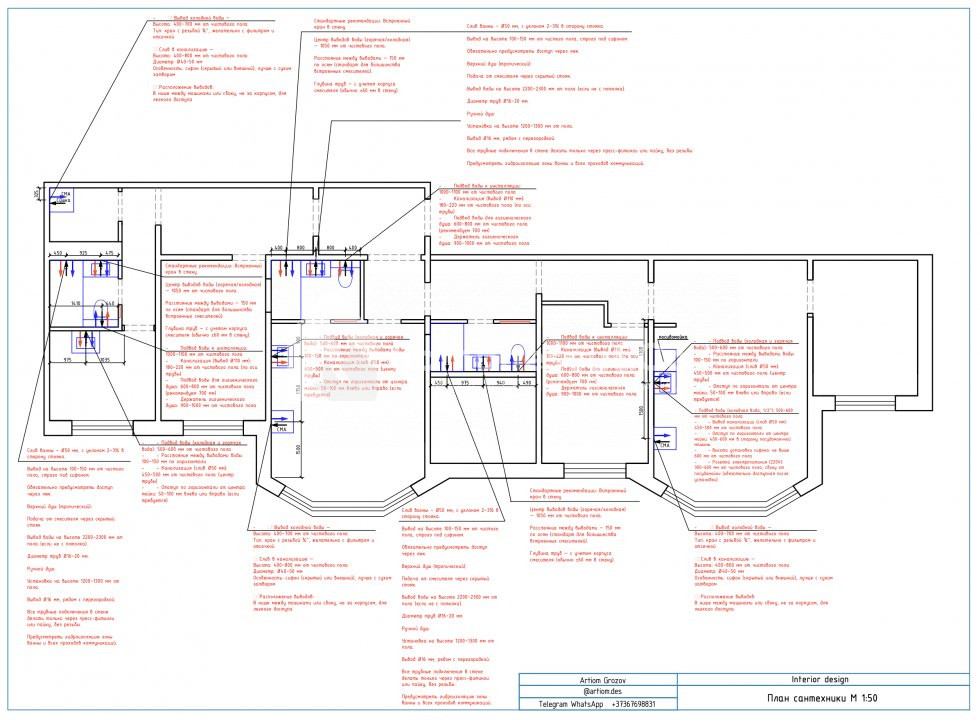
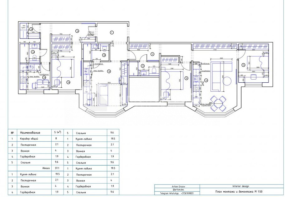
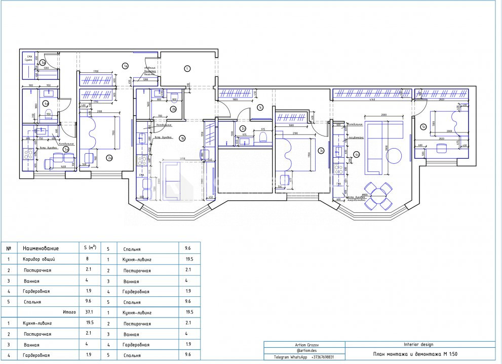
Spre vânzare spațiu nelocativ pe Bulevardul Ștefan cel Mare.
Se vinde ''la gri'', la moment prin imobil trec instalații inginerești care v-a fi posibil de mutat după finisarea sezonului rece.
Prețul:
* Datele financiare sunt aproximative și pot varia în funcție de instituția financiară.